Extension garage & atelier – Asasp-Arros
Au-delà de sa fonction de garage et atelier mécanique, le projet permet également de recomposer la façade Sud et de créer un nouvel espace de vie extérieur, ouvert sur le paysage et les Pyrénées, renforçant le lien entre l’habitation et son environnement naturel.

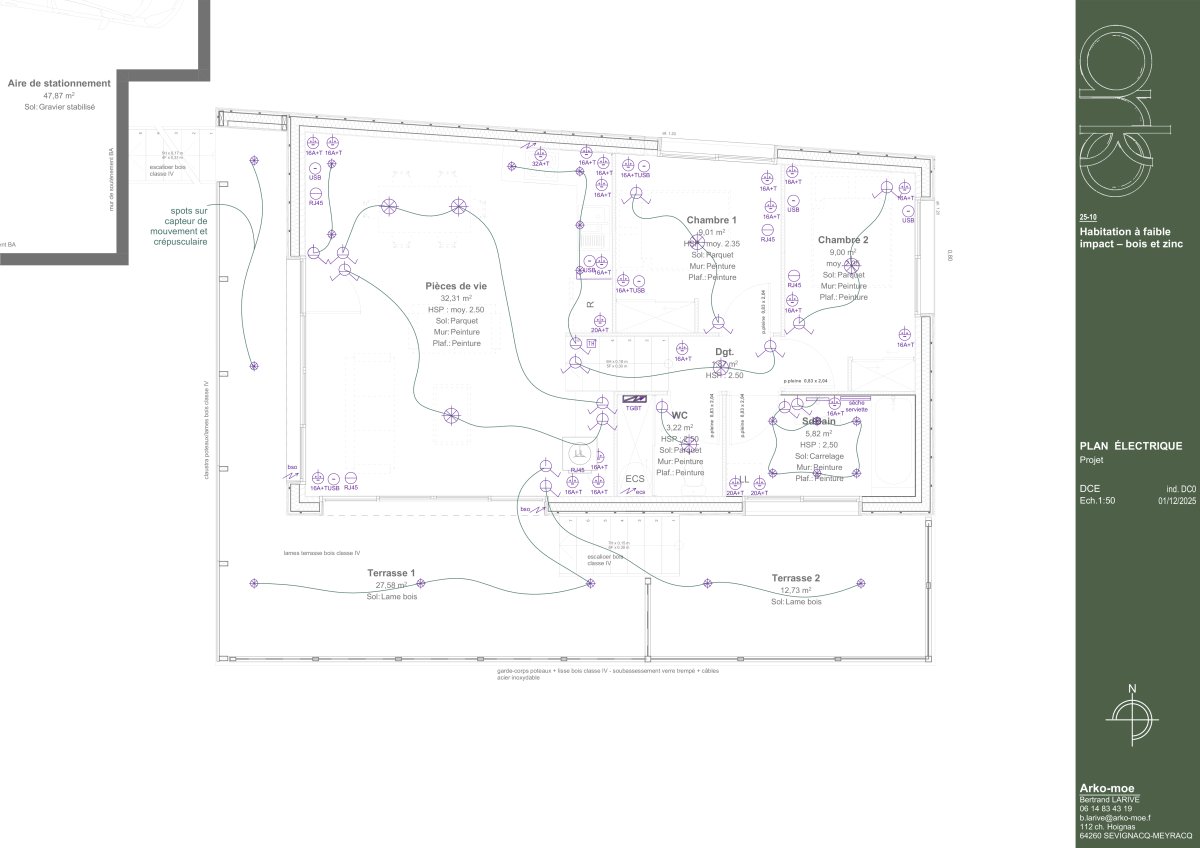
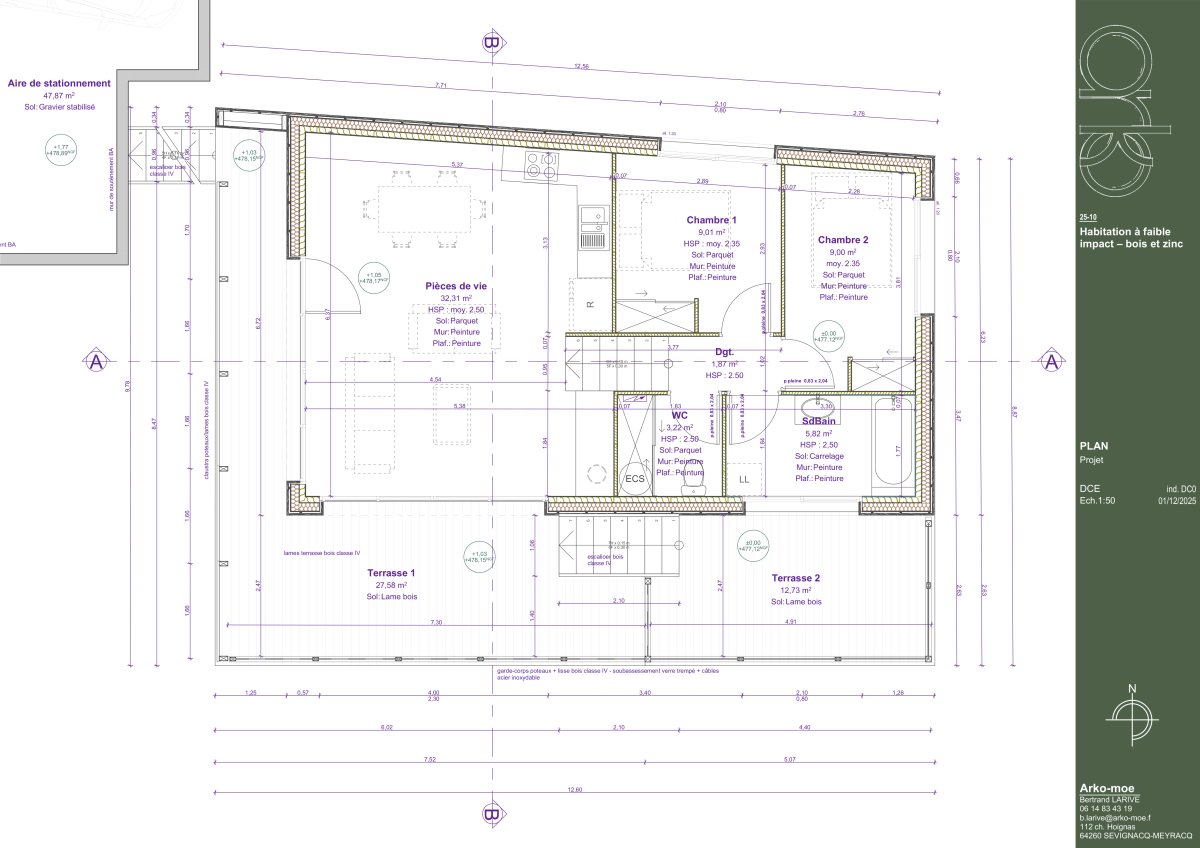
Habitation à faible impact - bois & zinc en vallée d'Ossau
Ce projet d'habitation est l'expression d'une architecture contemporaine pensée pour une intégration maximale sur un terrain à forte pente, tirant parti des défis topographiques pour en faire une force esthétique et écologique. Son implantation repose sur le principe de la construction sur pilotis, une solution technique qui permet de minimiser l'emprise au sol et de préserver l'intégrité du terrain naturel.
La maison se détache du sol offrant une vue imprenable depuis ses espaces de vie et ses larges terrasses extérieures. La volumétrie est simple et étagée, avec une toiture à faible pente qui s'inscrit discrètement dans la ligne d'horizon. Le choix des matériaux renforce cette volonté d'harmonie avec l'environnement : un bardage bois habille les façades principales pour une teinte chaleureuse et naturelle qui se fond dans la masse végétale, contrastant avec l'utilisation du zinc, un matériau noble et durable, pour les toitures et pan de façade Nord, apportant une touche de modernité sobre et pérenne. L'ensemble vise un faible impact environnemental, l'ossature légère en bois étant particulièrement adaptée à ce type de fondations minimalistes, créant ainsi un habitat à la fois fonctionnel, esthétique et respectueux du site.

